RECHERCHE

Ferme à vendre 4 chambres à Lenningen

  • Référence : 1327
  • Type : Ferme
  • Chambres : 4
  • Salle de douche : 1
  • Surface habitable : +/-160 m2
  • Superficie terrain : +/- 5,12 ares
  • Prix de vente : 800 000 €
  • Disponibilité : immédiate
Contact
Classe énergétique
NC
Classe d'isolation thermique NC

Description

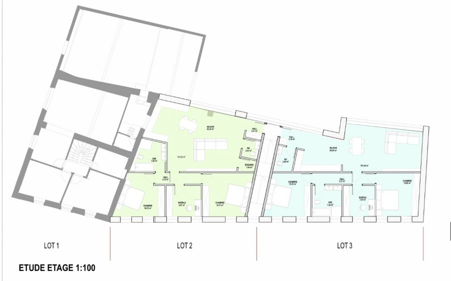
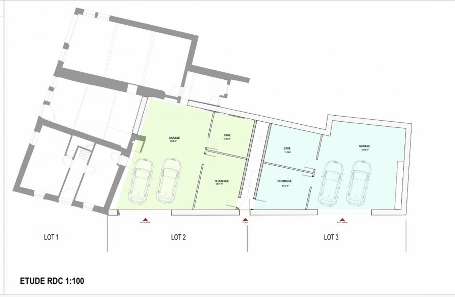
MANSO IMMO vous propose à la vente une maison avec grange à Lenningen. Érigée sur une parcelle de 5,12 ares et avec une surface actuelle habitable de +-160m2. Offrant plusieurs possibilités d'occupation mais et surtout d'un futur projet immobilier pouvant avoir un maximum de 5 unités (Sous réserve d'autorisation).

La maison actuelle est à rénover et vous offre 4 chambres, une cuisine séparée, un salon, garage pour plusieurs voitures et surtout un accès à une grange avec +- 750m2 de surfaces à explorer. Un potentiel unique de pouvoir y construire son projet personnel.
Un coin jardin au niveau supérieur de cette maison ainsi qu'un coin grill avec terrasse extérieure vous sont proposés également.

Au coeur du village et proche de la nature et surtout des transports publics, cette offre pourra être tout autant combiné pour habitation et activité professionnelle. La maison et la grange sont situées en zone mixte villageoise du PAG, ce qui vous offre encore plus de possibilités d'aménagement.

Toutes les indications sont basées exclusivement sur les informations mises à notre disposition par nos clients. Nous n'assumons aucune garantie quant à l'exactitude et l'actualité de ces indications.

Les prix affichés s'entendent frais d'agence inclus de 3% + 17%TVA. Les honoraires d'agence sont à charge des vendeurs.

Pour plus d'informations, photos ou convenir d'un rendez-vous, vous pouvez nous contacter au :
352 24 51 33 79 info@mansoimmo.lu


MANSO IMMO bietet Ihnen ein Haus mit Scheune in Lenningen zum Verkauf an. Es steht auf einem Grundstück von 5,12 Ar und hat eine aktuelle Wohnfläche von +-160m2. Es bietet mehrere Möglichkeiten für die Belegung, aber vor allem für ein zukünftiges Immobilienprojekt mit bis zu 5 Einheiten (vorbehaltlich der Genehmigung).

Das aktuelle Haus ist renovierungsbedürftig und bietet Ihnen 4 Schlafzimmer, eine separate Küche, ein Wohnzimmer, eine Garage für mehrere Autos und vor allem Zugang zu einer Scheune mit +- 750m2 Fläche, die Sie erkunden können. Ein einzigartiges Potenzial, um hier sein persönliches Projekt zu bauen.
Ein Gartenbereich auf der oberen Ebene des Hauses sowie ein Grillbereich mit Außenterrasse stehen Ihnen ebenfalls zur Verfügung.

Im Herzen des Dorfes, in der Nähe der Natur und vor allem der öffentlichen Verkehrsmittel, kann dieses Angebot sowohl für Wohnzwecke als auch für berufliche Aktivitäten genutzt werden. Das Haus und die Scheune befinden sich in der gemischten Dorfzone des PAG, was Ihnen noch mehr Gestaltungsmöglichkeiten bietet.

Alle Angaben basieren ausschließlich auf Informationen, die uns von unseren Kunden zur Verfügung gestellt wurden. Wir übernehmen keine Gewähr für die Richtigkeit und Aktualität dieser Angaben.

Die angezeigten Preise verstehen sich inklusive Maklergebühren von 3% + 17%MwSt. Die Maklergebühren sind von den Verkäufern zu tragen.

Für weitere Informationen, Fotos oder um einen Termin zu vereinbaren, kontaktieren Sie uns bitte unter :
352 24 51 33 79 info@mansoimmo.lu


MANSO IMMO offers for sale a house with barn in Lenningen. Set on a plot of 5.12 ares, with a current living area of +-160m2. Offering several occupancy possibilities, but above all a future real estate project with up to 5 units (subject to authorization).

The current house is to be renovated and offers 4 bedrooms, separate kitchen, living room, garage for several cars and, above all, access to a barn with +- 750m2 of surface area to explore. Unique potential to build your own personal project.
A garden area on the upper level of the house and a grill area with outdoor terrace are also available.

In the heart of the village, close to nature and above all to public transport, this offer can be combined for living and working. The house and barn are located in the mixed village zone of the PAG, offering you even more development possibilities.

All details are based exclusively on information provided by our customers. We accept no liability for the accuracy or up-to-dateness of the information provided.

Prices shown include 3% agency fee + 17% VAT. Agency fees are payable by the seller.

For further information, photos or to arrange an appointment, please contact us on :
352 24 51 33 79 info@mansoimmo.lu

Caractéristiques

Intérieur

SalonOui
CuisineOui
Cuisine séparéeOui
Nb de parking interne6

Sanitaires

Salle de douche1

Extérieur

Terrain5.12 ares
BalconOui
JardinOui
Nb de parking externe2

Voiture

Places de parking2

Chauffage / climatisation

ChauffageOui
Chauffage au mazoutOui

Contactez-nous

+352 24 51 33 79
+352 621 73 66 44

Vous
 
Champs obligatoire
 
 
 
En envoyant ce formulaire, j’accepte que mes informations soient enregistrées puis utilisées par notre agence afin de répondre à ma demande. Consultez notre pour connaître vos droits.
 

Localisation

Lenningen